Nassfeld Residences 1
Obervellach


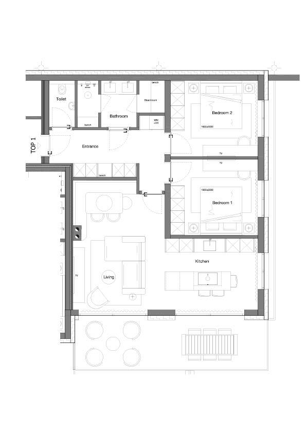
Onbezorgd genieten in een appartement voor 4 personen. Een warme en gezellig plek die voelt als thuiskomen vanaf het moment dat je de deur binnen stapt. Voorzien van 2 slaapkamers met een heerlijke boxspring om ’s avonds in weg te dromen.
De keuken is compleet ingericht en van alle gemak voorzien. Samen gezellig eten aan de comfortabele eettafel om daarna nog even televisie te kijken op de bank in de woonkamer. De luxe badkamers is hoogwaardig afgewerkt en van alle comfort voorzien, het toilet vind je separaat.
Dit appartement is op de begane grond.
Na een heerlijke dag buiten bespreek je de dag gezellig na samen op het balkon en als de zon onder gaat geniet je onbezorgd verder in jullie eigen sauna.
Kenmerken
Prijs
Totaal € 545.000
Oppervlakte woning
79 m2
Type of house
Appartement
Aantal personen
4
Mogelijk om te verhuren
Nee
Beschikbaarheid woning
Beschikbaar
Type of construction
Nieuwbouw
Bouwjaar
2026
Aantal slaapkamers
2
Aantal badkamers
1
Aantal toiletten
1
Tuin/balkon ligging
Zuid-oost
Locatie
Obervellach
Locatietype
Aan de voet van een berg
Turn-key
Ja
EV-oplaad mogelijkheid
Ja
Openhaard / gashaard
Nee
Eigen gebruik toegestaan
Ja
Perceeloppervlakte
186 m2
Oppervlakte balkon/tuin
107 m2
Oppervlakte woonkamer/keuken
33 m2
Oppervlakte slaapkamer
13 m2
Woningvoorzieningen
Schoonmaakvoorzieningen:
- Schoonmaakpakket
- Wasmachine
- Wasdroger
- Strijkplank en strijkijzer
Structurele elementen:
- Ventilatiesysteem
- Vloerverwarming
- Open haard / gashaard
- Oven
Elektronica en nuts:
- Internet
- Smart-TV
- Geluidssysteem
- Bluetooth speaker
- Haardroger
Inrichting
- Sauna
- Kinderstoel
- Kinderbed
- Eigenaarskast / opbergmogelijkheid
Meer informatie
Download de brochure voor o.a. een overzicht met de huuropbrengsten en vaste lasten!
Direct contact of bezichtiging?
Ben je geïnteresseerd? Onze adviseurs geven vrijblijvend advies.
Plan bezichtigingJouw adviseur
Dennis Kerssen
Pleun van der Wulp
Park informatie
Exclusief wonen – Design by Eric Kuster
Als toekomstige bewoner geniet u niet alleen van de prachtige omgeving, maar ook van het privilege om te wonen in een appartement volledig ingericht door Eric Kuster, de exclusieve Clofers Signature Designer. Kies zelf tussen de frisse en lichte stijl of de warme, chique variant. Dankzij deze turn-key oplevering stapt u direct binnen in uw nieuwe leven van "luxury, comfort and style".
The Good Life
Clofers Nassfeld Residences spreekt actief mensen aan die al langer nadenken over verhuizen naar Oostenrijk, of deels hun leven in dit prachtige land willen doorbrengen. Hier vindt u de perfecte combinatie van werken op afstand en ultiem genieten. Ervaar dagelijks "the good life": een ongeëvenaarde levenskwaliteit, prachtige natuur, uitstekende gezondheidszorg en een actieve, ontspannen levensstijl. Bovendien behoort deze regio tot de mooiste locaties van Europa waar u op een natuurlijke en ontspannen manier oud mag worden.
Beleef Hermagor-Presseggersee
Hermagor-Presseggersee ligt in het landelijke zuiden van Oostenrijk en biedt de ideale mix van authenticiteit, rust en gemak. Hier geniet u van het echte dorpsgevoel, met de indrukwekkende Alpen als achtertuin. Of het nu wandelen, fietsen, skiën, golfen of simpelweg ontspannen is, elke dag is hier "a day to look forward to".
Centraal gelegen in Europa
Clofers Nassfeld Residences biedt u ook uitstekende bereikbaarheid. Met Italië en Slovenië als buren en een uitstekende infrastructuur bent u altijd dichtbij nieuwe avonturen en culinaire ontdekkingen. Dankzij de perfecte verbindingen via "excellent roads and nearby airports" blijft u optimaal verbonden met Nederland en de rest van Europa.